Pesquisar perto de mim
A aguardar a sua pesquisa

306 Imóveis para Comprar encontrados

306 Imóveis para Comprar encontrados

Terreno com 2.200 m2 para construção de uma moradia de 4 frentes em Perosinho e Seixezelo
Porto, Vila Nova de Gaia, Pedroso e Seixezelo
100 000 €
Terreno com 1.450 m2 na zona industrial de Serzedo, Vila Nova de Gaia para a construção de Armazém
Porto, Vila Nova de Gaia, Grijó e Sermonde
43 650 €
Terreno industrial 2.800 m2 Perosinho, Vila Nova de Gaia para a construção de Armazém
Porto, Vila Nova de Gaia, Grijó e Sermonde
84 000 €
Restante Centro de Espinho Completamente mobilado e equipado a funcionar
Aveiro, Espinho, Espinho
325 000 €
1
Terreno em Serzedo, Vila Nova de Gaia
Porto, Vila Nova de Gaia, Serzedo e Perosinho
250 000 €
Terreno Urbano Perosinho com 400 m² para Construção de Moradia de 3 Frentes..
Porto, Vila Nova de Gaia, Grijó e Sermonde
65 000 €
Lote Terreno centro Canelas construção Moradia 4 Frentes
Porto, Vila Nova de Gaia, Canelas
95 000 €
Terreno Monte da Vigem para construção
Porto, Vila Nova de Gaia, Oliveira do Douro
750 000 €
Armazém 8.000 m2 de área coberta Vila Nova de Gaia
Porto, Vila Nova de Gaia, Oliveira do Douro
3 600 000 €
6
1
Quinta com Área 54.791 m2 Mafamude Vilar do Paraíso.....
Porto, Vila Nova de Gaia, Canelas
1 800 000 €
4
1
Terreno Francelos com PIP Aprovado para construção em Altura
Porto, Vila Nova de Gaia, Gulpilhares e Valadares
1 600 000 €
Terreno Olival com 11280 m2 Face a En 222 com 124 metros de Frente
Porto, Vila Nova de Gaia, Sandim, Olival, Lever e Crestuma
600 000 €
Loja Centro de Valadares com 240 m2
Porto, Vila Nova de Gaia, Gulpilhares e Valadares
150 000 €
2
1
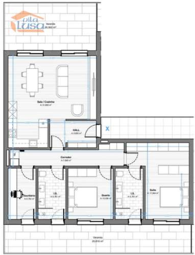
Moradia Nova T4 Centro de Vila Nova de Gaia garagem para 3 carros
Porto, Vila Nova de Gaia, Santa Marinha e São Pedro da Afurada
640 000 €
4
6
1
Armação de Pera T2+1 Novo 2 frentes 2 varandas e garagem
Faro, Silves, Armação de Pêra
669 000 €
3
2
1
Terreno Canelas com projeto para a construção de Moradia 3 frentes
Porto, Vila Nova de Gaia, Canelas
55 000 €
Armação de Pera T2 Novo 2 frentes 2 varandas e garagem
Faro, Silves, Armação de Pêra
462 000 €
2
2
1
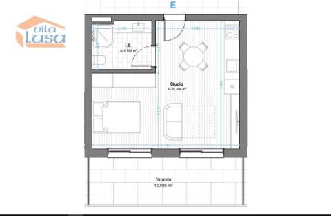
Armação de Pera T0 Novo com varanda e garagem
Faro, Silves, Armação de Pêra
242 000 €
1
1
T-0 Novo c/ varanda 12.58m2 e lugar de garagem no centro de Armação de Pera a 300mts da praia.
Faro, Silves, Armação de Pêra
237 000 €
1
1
Lote de Terreno 632 m2 à Praia de Valadares com projeto para a construção de Moradia
Porto, Vila Nova de Gaia, Madalena
155 000 €
T-1+1 Novo c/ varanda 25.34m2 e lugar de garagem no centro de Armação de Pera a 300mts da praia.
Faro, Silves, Armação de Pêra
413 000 €
2
1
1
T-2 Novo c/ varanda 24.76m2 e lugar de garagem no centro de Armação de Pera a 300mts da praia.
Faro, Silves, Armação de Pêra
462 000 €
2
2
1
T-2+1 Novo c/ varanda 46.53m2 e lugar de garagem no centro de Armação de Pera a 300mts da praia.
Faro, Silves, Armação de Pêra
671 000 €
3
2
1
Terreno para construção
Porto, Matosinhos, Matosinhos e Leça da Palmeira
675 000 €
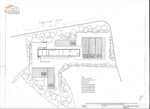
Terreno Excecional para Moradia Unifamiliar de 4 frentes em Vila Real
Vila Real, Vila Real, Mateus
55 000 €
Terreno de gaveto para construção de moradia em Rio Tinto
Porto, Gondomar, Rio Tinto
115 000 €
Magnifico T3 em Benfica
Lisboa, Lisboa, Benfica
499 900 €
3
2
1
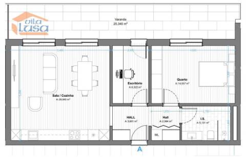
T1+1 Portimão Novo com varanda de 17 m2 e garagem
Faro, Portimão, Portimão
315 000 €
2
1
1
T3 Novo C/ Terraço e Varanda C/62.63m2 e dois lugares de garagem em Portimão.
Faro, Portimão, Portimão
855 500 €
3
3
1
T2+1 Com duas varandas com 46.09m2 e dois lugares de garagem em Portimão.
Faro, Portimão, Portimão
730 500 €
3
2
1
Lista
Mapa